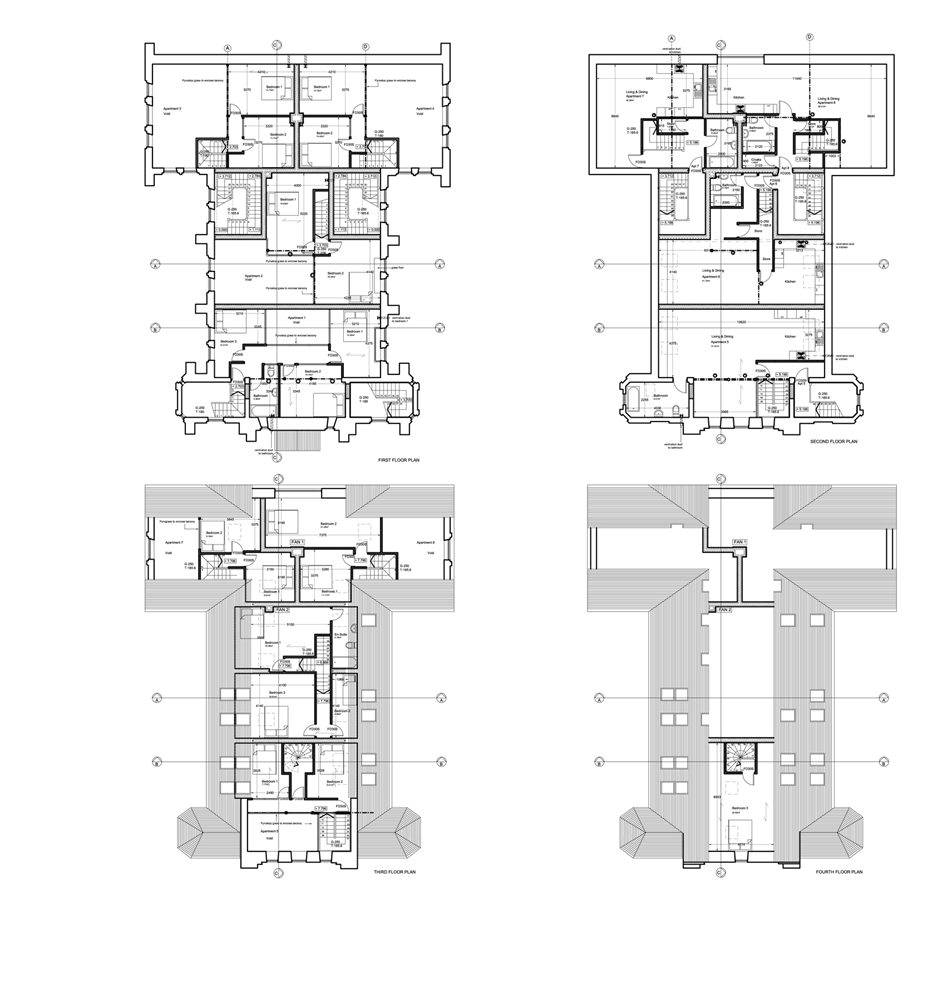
Newsham Park Church

Re-development of existing chapel building into eight apartments.  The design incorporated all the features of the church to make a unique living experience whilst keeping the integrity of the existing fabric.  Contract value £800,000.  Completed 2006.

Newsham-3

Newsham-1Newsham_2Newsham_3Newsham_4